Spórolj több millió Forintot
Most még akciós áron!
Hogyan tudom igénybe venni az AKCIÓS árat?
(Ez azok számára segítség, akik nem tudják pár hónapon belül elkezdeni az építkezést, hanem körülbelül 1 éven belül tervezik.)
Kitöltöm az űrlapot!
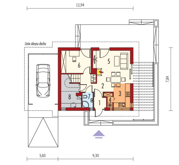
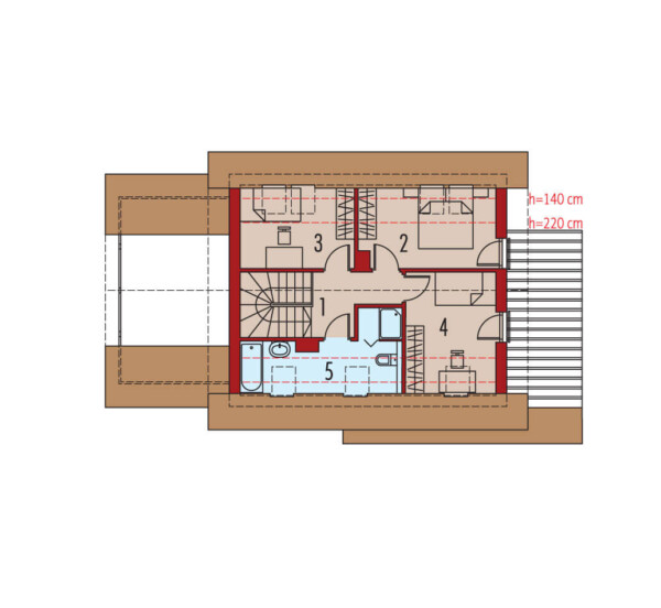
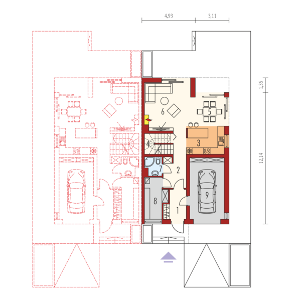
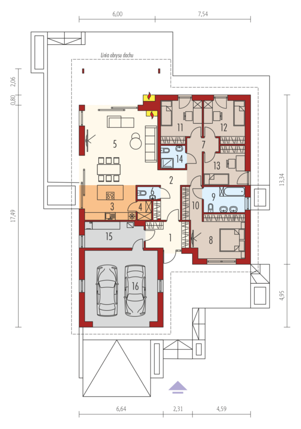
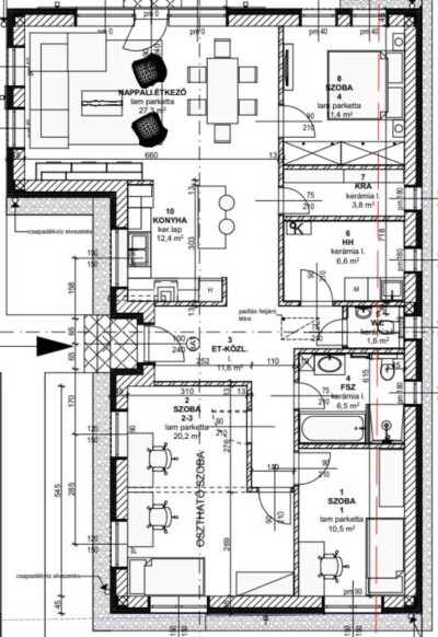
Ötletadó tervek
Válassz a tervek közül, vagy kérj egyedi tervezést!
Garázs és terasz házainkhoz rendelhető!
Minden házat személyre szabunk, a vevők igénye szerint alakítunk ki.
Mit kapok, ha a felépítem.com csapatát választom?
9 ok, hogy miért velünk
Rövid határidő
10 – 12 hónap.
Szerződésben garantáljuk!
Pár hónap alatt be tudsz költözni az új otthonodba.
Átadási dátum tartása
A szerződésben vállalt időpontra átadjuk a kulcsrakész házad.
Nem kell tartani attól, hogy az építkezés évekig elhúzódik.
Árgarancia
Ne aggódj! Garantáljuk a fix árat. Az építkezés nem lesz drágább még akkor sem ha az építőanyag árak emelkednek.
Ugyanis leszerződött partnereinknek, kizárólag a szerződésben foglalt összeget kell kifizetniük.
Ellenőrzés és tájékoztatás
A teljes építkezést műszaki ellenőrünk felügyeli, elejétől egészen a kulcs átadásáig.
Az építkezés során rendszeresen és egyértelmű tájékoztatást adunk, hogy éppen hol tartunk.
Minőségi munka
Számos visszatérő partnereink vannak, akik újra nekünk adják a bizalmat, mi építhetjük meg álmaik otthonát.
Megbízható szakemberek
Nem kell aggódnod, hogy az építkezés alatt a szakemberek egyik napról a másikra eltűnnek.
Mi 20 éve ugyanazzal a kipróbált, megbízható csapattal dolgozunk.
Teljes körű ügyintézés
A tervezéstől kezdve a bútorok elhelyezésén át, egy mesebeli kert kialakításáig számíthatsz a segítségünkre.
Sőt, ha mindehhez hitelre van szükséged, együttműködő partnerünk egyedi, személyre szabott banki ajánlatot tud adni.
Megtekinthető referenciák
Egy időben több építkezésünk is zajlik.
Tekintsd meg a hozzád legközelebbi, éppen folyó építkezést és a megépített házaink egyikét.
Garancia – 3, 5 és 10 év
3 év a burkolatok, festés, mázolás, tapétázás, ereszcsatornák, esővízlefolyó vezetékek.
5 év a tetőhéjalások, válaszfalak, csapadékvíz és használati víz elleni szigetelések, nyílászáró szerkezetek és elektromos tápvezetékek is.
10 év alapozási szerkezetek, teherhordó vázak, födémek, fedélszerkezetek, szellőzőkürtők, kémények.
most még akciós ár!
Árak
bruttó
320.000 Ft / m²
Szerkezetkész állapot
bruttó
380.000 Ft / m²
Félkész állapot
bruttó
530.000 Ft / m²
(570.000 Ft / m² helyett)
Kulcsrakész állapot
Mit tartalmaz a kulcsrakész ár?


Ne maradj le róla!
Használd ki az 5%-os Áfá-t és az állami támogatásokat
- Csok Plusz, Falusi CSOK
- Start Hitel
- Babaváró
- Illetékmentesség
- Áfa visszatérítés
- Ingyenes lakóház tervek!
Pénzügyi szakértőnk lépésről lépésre segíteni fog a támogatások elnyerésében!
Családi házakon kívül még építünk…
referenciák
Már több, mint 200 házat építettünk
Személyesen megnéznéd a referenciáinkat?
Folyamatban lévő építkezéseink: 14 db, amiből most 3-at mutatunk be
Kíváncsi vagy az átadás előtt álló és a már megépített házainkra?
Kérj időpontot, hogy megtudd nézni a hozzád legközelebbi, éppen folyó építkezésünket.
rólunk
29 éve az építőiparban
Együttműködő partnereink



kapcsolat
Írj vagy hívj a hét bármely napján!
Ha felkeltettük az érdeklődésed, hívj bátran vagy töltsd ki az űrlapot és visszahívunk!
1134 Budapest, Lehel utca 12.
Keress minket a közösségi oldalainkon
tudástár
Aktualitások az építőiparban

Tervezőnk válaszol
1. Mielőtt megveszem a telket, mire figyeljek oda? Ez elsősorban jogi és csak utána pénzügyi kérdés, legutolsó sorban pedig építészeti. A két legfontosabb résztvevő legyen …

Meddig marad az 5%-os lakásáfa és mit lehet róla tudni?
A kormány 2022. december 31-i határidőt meghosszabbította 2 évvel, vagyis a 2024.év végéig építési engedélyt szerző új lakások vételárát lehet még a kedvezményes adó mellett rendezni. …

Milyen állami támogatásokat vehetek igénybe, ha építkezni szeretnék?
CSOK Támogatás Családi otthonteremtési kedvezmény (CSOK) a gyermeket nevelő vagy vállaló családok részére biztosított vissza nem térítendő állami támogatás, új otthon vásárlására, építésére vagy használt …

Építkezés lépésről lépésre
Megvásárolni kívánt telekre mit lehet és mit nem lehet építeni. (Van, hogy az adott körzetben pl.: 1 hete hoztak egy rendeletet az építkezési tilalomról, vagyis …

Talált pénz! Pályázati lehetőségek.
Több millió forintot tudunk megspórolni, ha élünk a kiírt pályázati lehetőségekkel! Legyen az megújuló energia (napelem, napkollektor, hőszivattyú, biomassza), energetikai, fűtéskorszerűsítés, nyílászáró-felújítási, tetőcsere és egyéb …

Hogyan válasszak generálkivitelezőt?
1. Keress több kivitelezőt, kérj árajánlatokat. Ne a legolcsóbb ár alapján dönts! Ár/érték/minőség legyen a mérvadó 2. Nézd meg a referencia munkákat személyesen. Látogass el …












































































































